NORQ HOMES ノークホームズ編集部
福井の高性能注文住宅を建てる工務店ノーク・ホームズが、リノベーションに役立つ情報を発信しています。
登録・免許
【設 計】 福井県知事 第ろ-1394号
【建 設】 福井県知事 (般-1)10791号
【不動産】 福井県知事 (1)第1704号
福井のリフォーム・リノベーション・増改築

「居住スペースを増やしたい。増築できない家だった場合はどうすればいいのか」とお悩みの方へ。
ライフスタイルの変化により、居住スペースを増やしたい場合に、費用を抑えられる増築リフォームが魅力的ですよね。
ただし、建物の構造や立地条件によっては、増築できない家もあることに注意しましょう。
今回は、多くのリフォーム・リノベーションを手掛けてきた福井・石川の工務店「ノークホームズ」が以下の項目を解説します。
| このコラムのポイント |
|---|
|
このコラムを読むことで、「ご自身の家が増築できるのか」「できなかった場合にどうするべきか」がわかります。
ぜひ最後までごらんください!
目次

増築とは、建物の床面積を増やすリフォームのことを指します。
(例)
「増築リフォームをしたい」と思っても、主に以下の条件により増築できない場合があるため、注意しましょう。
家を建てる際には、敷地の大きさに対して建築できる建物の大きさに制限があります。。
上記の制限は増築時にも適用されるため、建ぺい率・容積率の上限を超える場合は、増築できないことに注意が必要です。
例えば、「建ぺい率60%」「敷地面積が100㎡」の場合は、建ぺい率により建築できる面積は60㎡までなので、建築面積が60㎡以上になる増築はできません。

建物の構造が鉄筋コンクリート(RC)造の場合、壁を解体によって建物の強度が低下することがあります。
したがって壁を解体してつなげる増築は難しいのが一般的で、開口部を利用することで増築が可能になるケースもあります。

「再建築不可物件」とは、土地が道路に接している幅が2m未満の土地のことです。
再建築不可物件は、建築確認申請を必要とするような改築・増築を行うことができません。

北側・道路などの斜線制限等により建物の高さが制限されている場合があります。
10㎡以下の増築でも高さ制限に抵触する場合があるので注意しましょう。

環境や景観保護の観点から、自治体独自に定める条例により増築ができないことがあります。
増築のプランを組み立てる前に条例の確認をするようリフォーム会社等に依頼しましょう。
福井・石川で増改築を検討中の方は、ノークホームズにご相談ください。
家づくりで培った提案力を活かし、ワンストップのデザインリノベーションで理想のマイホームを実現いたします。
〈お問い合わせ〉
〈スタジオ来場のご予約〉
※当社はしつこい営業を一切行っておりません。ご安心下さい。
※建築予定地が施工エリア外の場合には、資料請求をお断りさせていただきます。あらかじめご了承ください。
〈施工エリア〉
福井県:福井市・坂井市・あわら市・鯖江市・越前市・勝山市・永平寺町・越前町・大野市(和泉中学校区以外可)・越前町(越前中学校区以外可)・南越前町(南条小学校区のみ可)
石川県:小松市・加賀市・能美市・川北町・白山氏・野々市市・金沢市

増築リフォームには、メリット・デメリットがあります。
場合によっては、「フルリフォーム」「建て替え」を検討した方がよいケースもあるので注意しましょう。
増築リフォームのメリットは、以下のとおりです。
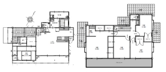
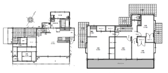
例えば、以下の事例では工期3ヶ月で増築リフォームを実施し、完全分離型の二世帯住宅が完成しました。
【増築して二世帯住宅にした間取り実例】
実家を二世帯住宅にリフォームする費用・間取り実例を、こちらの記事で確認できます。
▶関連ページ:実家を二世帯住宅にリフォームする費用相場|おすすめの間取り実例やメリット・デメリットも紹介
また、リフォーム内容によっては住みながらの工事もできるため、仮住まいを探さなくて済む可能性があることも増築リフォームの魅力です。
以下の記事で、住みながらリフォームをするメリット・デメリットを紹介しています。
▶関連ページ:断熱リフォームは住みながらでもできるのか|メリット・デメリット、費用など紹介
増築リフォームには、以下のようなデメリットがあります。
住宅全体のバランス・デザイン性を考慮した設計・施工が可能な、技術力の高い施工業者を選定するようにしましょう。
増築リフォームを検討中の方は、ノークホームズにご相談ください。
福井・石川エリアで豊富な実績を持つ私たちが、理想的な増築リフォームを提案いたします。
〈お問い合わせ〉
〈スタジオ来場のご予約〉
※当社はしつこい営業を一切行っておりません。ご安心下さい。
※建築予定地が施工エリア外の場合には、資料請求をお断りさせていただきます。あらかじめご了承ください。
〈施工エリア〉
福井県:福井市・坂井市・あわら市・鯖江市・越前市・勝山市・永平寺町・越前町・大野市(和泉中学校区以外可)・越前町(越前中学校区以外可)・南越前町(南条小学校区のみ可)
石川県:小松市・加賀市・能美市・川北町・白山氏・野々市市・金沢市

建物の構造や立地条件などにより増築できない家であった場合の対処法について解説します。
建物全体をリフォームすることで、建物の間取りを変えられます。
建物の間取りを変えることにより、「子ども部屋をつくる」「二世帯住宅にリフォームする」なども可能です。
その他にも、ロフトや中2階を設けるなどのアイデアで増築しなくても要望を叶えられる場合もあります。
以下の記事で、リフォームで2階の間取りを変更する方法を紹介しています。
▶関連コラム:リフォームで戸建ての2階を間取り変更|子供部屋などの間取り例、リフォーム費用&費用を抑える方法など解説
増築できない場合には、建て替えをすることで新しく住宅をつくりなおし、建ぺい率・容積率をギリギリまで住宅面積を広げることも可能です。
フルリノベーションと比べ、「工期が長くなる」「費用がかかる」などのデメリットがありますが、住宅の築年数が古い場合には、建て替えた方がよいケースもあります。
住み替えとは、現状の住居を手放して別の住居に引っ越すことを指します。
例えば、「二世帯で同居することになった」などのケースで、リノベーション・建て替えで必要な居住スペースを確保できない場合には、住み替えを検討しましょう。
福井・石川で新築・リフォームどちらを選ぶかか迷っている方は、ノークホームズにご相談ください。
ご家族のご予算・要望を伺ったうえで、最適なプランを提案いたします。
〈お問い合わせ〉
〈スタジオ来場のご予約〉
※当社はしつこい営業を一切行っておりません。ご安心下さい。
※建築予定地が施工エリア外の場合には、資料請求をお断りさせていただきます。あらかじめご了承ください。
〈施工エリア〉
福井県:福井市・坂井市・あわら市・鯖江市・越前市・勝山市・永平寺町・越前町・大野市(和泉中学校区以外可)・越前町(越前中学校区以外可)・南越前町(南条小学校区のみ可)
石川県:小松市・加賀市・能美市・川北町・白山氏・野々市市・金沢市

最後に、増築できない家についてノークホームズがよくいただく質問と回答を紹介します。
増築とは、既存の建物の床面積を増やすことです。
一方で、改築とは建物の一部や全部を解体し、これまでと同等の建物を再現することを指します。
確認申請をしないと、以下の罰則が科せられる可能性があります。
以下の場合を除き、住宅の増築には確認申請が必要です。
・防火地域、準防火地域以外の地域である
・増築部分の床面積の合計が10㎡以内である
今回は増築できない家の特徴や増築できない場合の対処法について紹介しました。
増築できない家であっても、間取りを変更などのリフォームにより、「部屋を増やす」「二世帯住宅にする」など要望を叶えられる場合もあります。
また、場合によっては建て替えを検討した方がよいケースもあることに注意しましょう。
今回紹介した情報が、増築できない家でお悩みの方の参考になれば幸いです。